Loch Ness Development Plot 1, Kirkhill, Inverness

Land For Sale

Outstanding opportunity to purchase land with development potential in amazing location on the outskirts of Inverness.

Starting bid: £41,000.00

Item condition: New

Auction has not been started yet.

Start On: May 13, 2026 10:00 am

Starting Time Left:

Ending On: May 13, 2026 2:00 pm

Submit an offer to buy this lot before it goes to auction

Are you considering selling a house, a flat, land or a commercial property?

Tell us a bit about it and we can give you an almost instant, FREE, no obligation auction valuation.

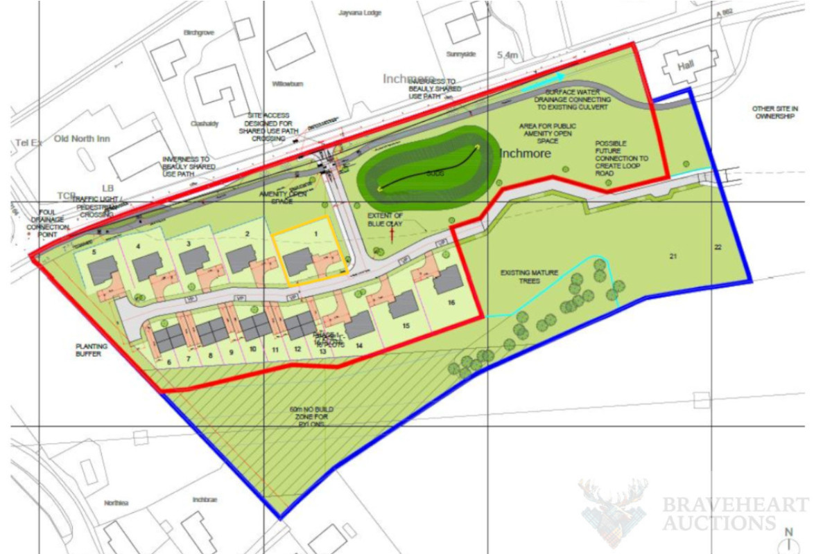
686sqm (7,384sqft) of land located in the affluent village of Inchmore

Planning in principle granted for development

Set within 6 miles of the centre of Inverness

Realistic completed development value of £700,000

Massive demand for land in this location

Plots with full planning in the area generally sell for around £120,000- £150,000

Rarely available opportunity

Bid now! To avoid missing out

Outstanding development opportunity on stunning location on the outskirts of the capital of The Highlands, Inverness.

686sqm (7,384sqft) of land located in the affluent village of Inchmore by the Beauly Firth approximately 7 miles west of the historic city of Inverness.

The plot has planning permission in principle granted for the erection of a modern, detached house.
The plot is part of a larger site where planning permission has been granted for the erection of 16 houses.

This plot is plot 1 on the map/plan included in the listing.

A detached house in this location would (subject to standard of completion) be likely to be valued at a minimum of £700,000- based on recent developments in and around Inverness.

Plots with full planning in the area generally sell for around £120,000- £150,000 so this offers an excellent opportunity with massive potential for income generation.

Planning information- https://wam.highland.gov.uk/wam/applicationDetails.do?activeTab=documents&keyVal=R93PRHIHGCR00 (Planning Reference: 22/01289/PIP)

The area currently enjoys a massive demand for development thanks to the stunning location in the countryside with excellent access to the centre of Inverness and to the massive range of attractions, entertainment and major employers locally.

New build estates within Inverness and surrounding villages are currently commanding prices from £600,000 to £700,000 where finished to a high standard solidifying the demand for new housing locally as the ‘Capital of the Highlands’ continues to expand.

This site boats an outstanding location in the affluent village of Inchmore, linked to the larger settlement of Kirkhill on the outskirts of Inverness.

Inverness is a city on Scotland’s northeast coast, where the River Ness meets the Moray Firth. It’s the largest city and the cultural capital of the Scottish Highlands. Its Old Town features 19th-century Inverness Cathedral, the mostly 18th-century Old High Church and an indoor Victorian Market selling food, clothing and crafts. The contemporary Inverness Museum and Art Gallery traces local and Highland history.

Inverness is undergoing significant development driven by population growth and economic expansion, particularly in life sciences, energy and tourism. The city is a hub for innovation, with manufacturing and service sectors serving the needs of the offshore oil industry and focusing on areas like fish processing and electronics.

The brand new village of Tornagrain on the outskirts of the city is one example of ongoing development, reflecting the growing community and infrastructure in the area.

Inverness has experienced considerable population growth since 2001 and the greater Inverness area now has a population of around 80,000- 85,000. Among the fastest growing cities in the whole of Europe. The historic city has a dynamic economy- the envy of many cities in Europe.

The plots will be sold on an individual basis with all purchasers expected to form a group for the provision of roads and utilities and meet the conditions required for full planning and development.

Whilst planning in principle is granted for the site the auctioneer can offer no guarantees on planning and all bidders should satisfy themselves fully before purchasing.

Some of the images used have been generated to show the potential use of the land and form no part of the contract.

This lot will be sold under auction terms and conditions by Braveheart Auctions.

Speak to one of our dedicated team today for more information or submit offer now

Be Brave…Follow Your Heart

Braveheart Auctions hold land and property auctions every 2 weeks.

 

 

Do you know someone with a problem property?
Pass the details to Braveheart Auctions- We will sell it and we will pay you for the referral.

Pre-Auction Purchase

The seller of this lot has indicated that pre-auction offers will be considered. An offer can be submitted by click on the button below and completing the form.

A member of our sales team will contact you following the submission of your offer. If your offer is accepted then you will pay the required deposit to secure the lot today.

Special Conditions of Sale

14 day completion
Contribution to seller's fees of £1,000+VAT *Reduced to £750+VAT for on time completion*

Special Conditions of Sale

14 day completion
Contribution to seller's fees of £1,000+VAT *Reduced to £750+VAT for on time completion*